Fantastic 2-bedroom apartment in Monte Gordo, in a building under construction on the second line from the beach. The building has an elevator and a rooftop pool. The beach is just 100 meters away.
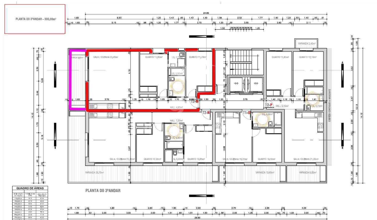
This is a 3th-floor apartment with 83 sqm of gross area and 70 sqm of usable area (unit M), consisting of an entrance hall, a living room with an open-plan kitchen, measuring 33.40 sqm, a bathroom, and two bedrooms, each with almost 12 sqm. The living room provides access to an 8.80 m2 west-facing balcony with sea views, and the kitchen is fully equipped with Indesit appliances, including a ceramic hob, oven, extractor fan, refrigerator, dishwasher, washing machine, and microwave. The apartment also has a heat pump for water heating, pre-installation for air conditioning, electric blinds, and thermally insulated window frames.
The price does not include a parking space or storage unit, which can be purchased separately.
The building is scheduled for completion in the second quarter of 2028, and the payment terms are as follows: 25% upon signing the preliminary purchase and sale agreement (CPCV); 25% when the structure is completed; 50% upon signing the deed, after the building is finished and the occupancy permits are issued.
Do not hesitate to contact us for more information.
Henrique Roque
PREDIMED HELLO
henrique.roque@predimed.pt +351 936700507 Chamada para a rede móvel nacional