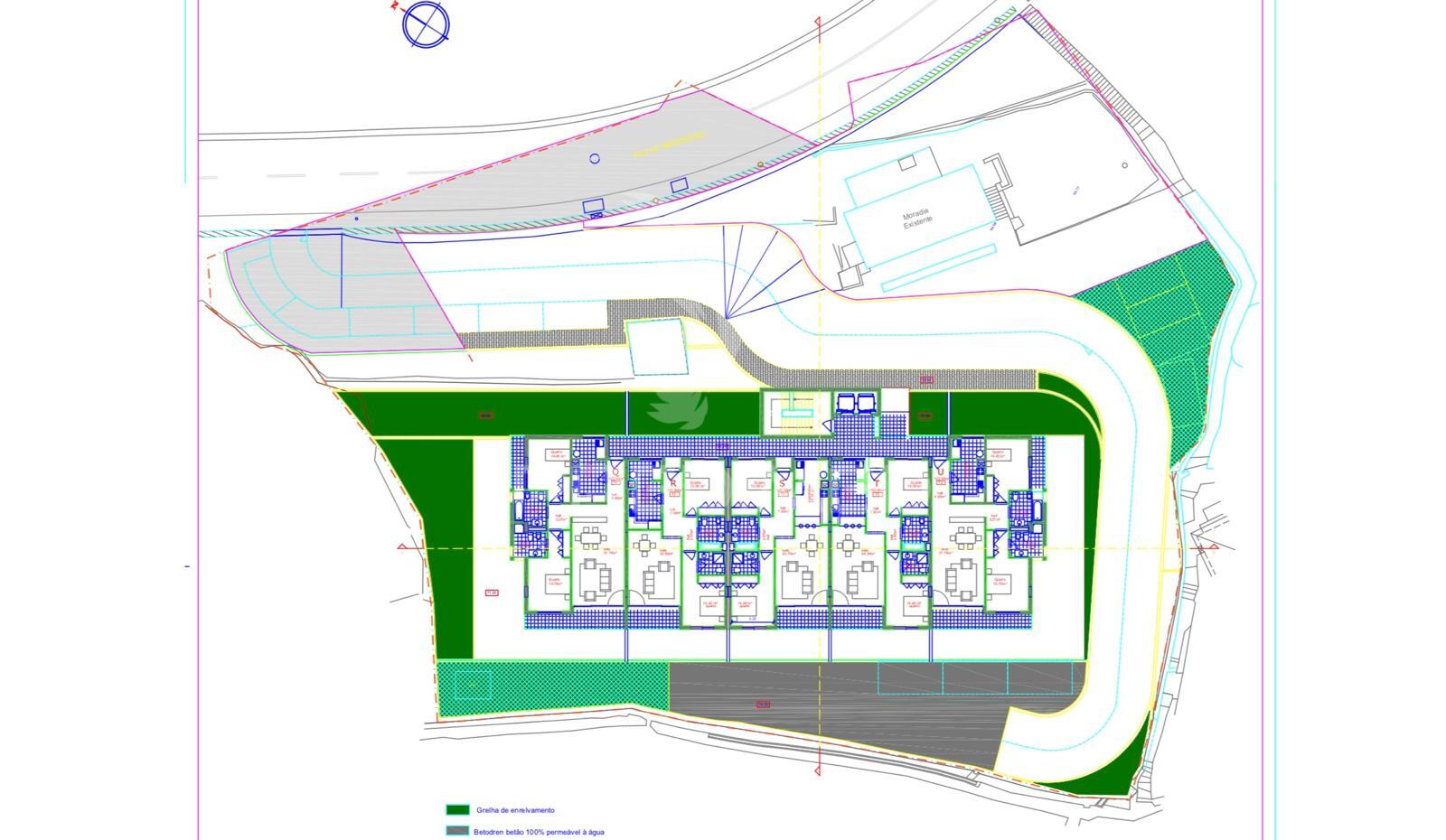
Terreno com Projeto Aprovado – 20 Apartamentos T2 Oportunidade única de investimento imobiliário!
Terreno com PIP e projeto de arquitetura aprovados para a construção de 20 apartamentos T2, situado em zona de grande valorização, próxima ao centro da cidade, aeroporto, praia, restaurantes, mercados e serviços públicos.
Características Principais:Área total do terreno: 2.590 m²
Implantação: 865 m²
Área de construção total: 3.418 m²
Índice de construção: 2.180 m²
Área impermeabilizada: 1.034 m²
Projeto em fase de preparação das especialidades
Vantagens do Empreendimento:Localização privilegiada com vista mar e vista montanha
Excelente exposição solar e acessos
Proximidade a zonas residenciais consolidadas e infraestruturas urbanas
Ideal para promotores e investidores que procuram um projeto pronto a iniciar
Este terreno combina localização estratégica, vistas panorâmicas e projeto aprovado, garantindo um arranque rápido e seguro de desenvolvimento.