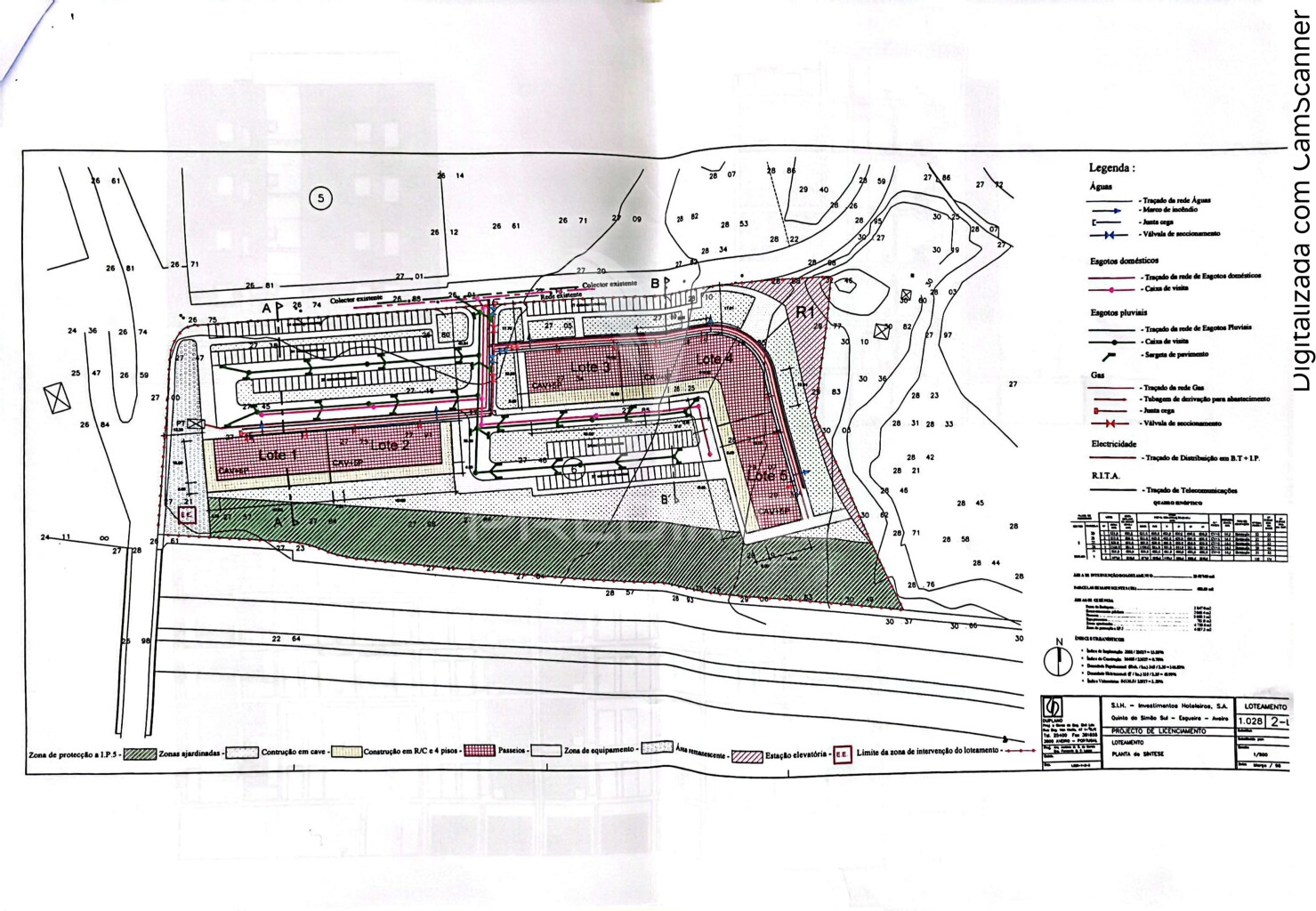
Apresentamos um conjunto de 3 lotes urbanos com projeto habitacional aprovado, inseridos numa urbanização moderna e em expansão, localizada na freguesia de Esgueira, em Aveiro, uma área em pleno crescimento e com ótimos acessos. Com excelentes indicadores urbanísticos e capacidade construtiva otimizada, os lotes permitem a edificação de edifícios multifamiliares, com um total de 72 apartamentos distribuídos por seis pisos (cave + rés do chão + 4 andares).
Informações por Lote
Lote 3
Área do lote: 800 m²
Área de implantação: 600 m²
Área de construção: 3.600 m²
Nº máximo de fogos: 21
Estacionamento em cave: 32 lugares
Lote 4
Área do lote: 1.106 m²
Área de implantação: 881 m²
Área de construção: 5.286 m²
Nº máximo de fogos: 29
Estacionamento em cave: 44 lugares
Lote 5
Área do lote: 800 m²
Área de implantação: 600 m²
Área de construção: 3.600 m²
Nº máximo de fogos: 21
Estacionamento em cave: 32 lugares
Destaques do Projeto
Urbanização com infraestruturas concluídas
Implantação ideal para tipologias T1 a T3
Varandas generosas e excelente exposição solar
Estacionamento subterrâneo para todos os apartamentos
Forte potencial para venda, arrendamento ou habitação própria
Este projeto sólido e pronto para avançar está numa das zonas com maior atratividade do mercado residencial.
Este conjunto de 3 lotes representa uma oportunidade única para promotores e investidores que procuram projetos com elevada rentabilidade e rápida valorização. A possibilidade de construir até 72 frações habitacionais, com áreas generosas, estacionamento privado e inseridas numa envolvente urbana moderna e bem servida, garante um posicionamento atrativo tanto para o mercado de venda como para arrendamento de longa duração.
Envolvente Urbana e Qualidade de Vida
A urbanização onde os lotes se inserem caracteriza-se por ser tranquila, acessível e em crescimento, com ótimos acessos rodoviários, proximidade a escolas, comércio, serviços e zonas verdes. A configuração dos edifícios privilegia a luminosidade natural, privacidade e conforto, com uma arquitetura contemporânea que se integra harmoniosamente no espaço urbano envolvente.
Resumo Técnico (Total dos 3 Lotes)
Área total dos lotes: 2.706 m²
Área de construção total: 12.486 m²
Número total de apartamentos previstos: 72
Estacionamento subterrâneo total: 108 lugares
Altura máxima: CV + 5 pisos
Uso previsto: Habitação multifamiliar
A SUA CASA MORA AQUI!