">
Magnifique appartement T3 (2 chambres) à Monte Gordo, dans un immeuble en construction situé en deuxième ligne de plage. L'immeuble dispose d'un ascenseur et d'une piscine sur le toit. La plage est à seulement 100 mètres.
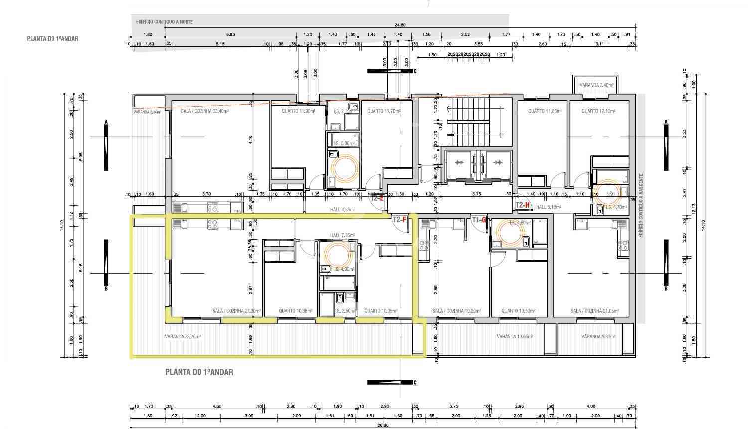
Cet appartement au 1er étage (unité F) offre une surface habitable de 75 m² et une surface utile de 63 m². Il comprend un hall d'entrée, un séjour avec cuisine ouverte (33,40 m²), une salle de bains et deux chambres, l'une de 10,95 m² et l'autre de 10,35 m². Le séjour donne accès à un superbe balcon de 33,79 m² exposé ouest et sud, offrant une vue imprenable sur la mer. La cuisine est entièrement équipée d'appareils Indesit : plaque vitrocéramique, four, hotte aspirante, réfrigérateur, lave-vaisselle, lave-linge et micro-ondes. L'appartement bénéficie également d'une pompe à chaleur pour le chauffage de l'eau, d'une pré-installation pour la climatisation, de stores électriques et de fenêtres à double vitrage.
Le prix indiqué ne comprend ni place de parking ni espace de stockage, qui peuvent être acquis séparément.
La construction devrait s'achever au deuxième trimestre 2028. Les modalités de paiement sont les suivantes : 25 % à la signature de la promesse de vente ; 25 % à la fin des travaux ; et 50 % à la signature de l'acte de vente définitif, une fois le bâtiment terminé et les permis d'occupation délivrés.
N'hésitez pas à nous contacter pour plus d'informations.
Henrique Roque
PREDIMED HELLO
henrique.roque@predimed.pt +351 936700507 Chamada para a rede móvel nacional