T0 + 1 apartment located in the Beira-Mar neighborhood
Property consisting of unique characteristics of the Beira-Mar neighborhood. It is located 50 meters from the Church of São Gonçalinho and from the ponte do lace.
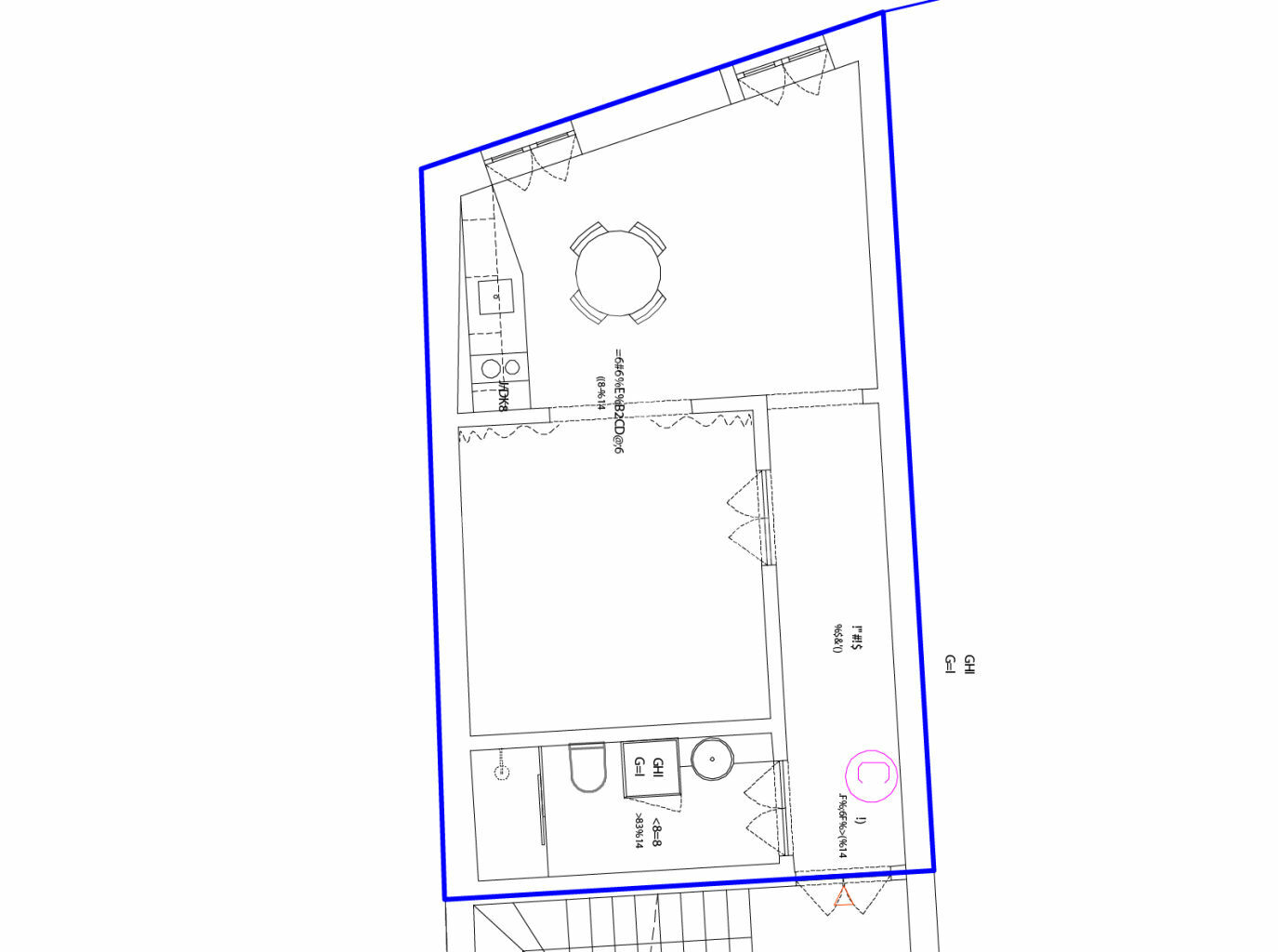
Apartment with good areas, a complete bathroom, equipped kitchen, good sun exposure and high ceilings.
Come and see this excellent investment in the center of Aveiro.